北京装修论坛 - 北京装修社区_高老庄工长装修

 找回密码
立即注册
热搜: 工长 设计 曝光
楼主: 猪八戒

精彩装修日记《又一个奶酪快完工了◥◣◢◤奶酪居入住2个月》

[复制链接]

9

主题

4299

帖子

8656

积分

本科毕业

积分
8656

社区居民

 楼主| 发表于 2012-1-5 19:31:32 | 显示全部楼层
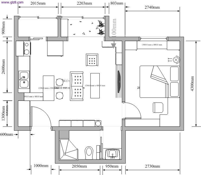
装修前传之四:咨询了某位DX,用VISIO画的户型图,效果出奇的好


看日记的时候,看中某位大虾的户型图了(由于大虾留的是英文名,实在是没记住,抱歉抱歉),小窗了一下,大虾很快给我回了。VISIO画的户型图,效果出奇好。以前只用VISIO画过流程图,实在不知道还有这项功能,后来查了一下还能画电气图,下次再研究研究。

不废话啦,上图:

6.jpg
回复

使用道具 举报

9

主题

4299

帖子

8656

积分

本科毕业

积分
8656

社区居民

 楼主| 发表于 2012-1-5 19:32:13 | 显示全部楼层
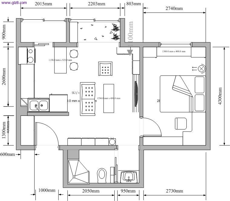
厨房的吧台位置调了一下,请大家建议一下那种比较好吧。其他的结构基本确定了....
7.jpg
回复

使用道具 举报

9

主题

4299

帖子

8656

积分

本科毕业

积分
8656

社区居民

 楼主| 发表于 2012-1-5 19:32:39 | 显示全部楼层
装修前传之五:榜样的力量无穷大之厨房篇

    对于我们而言,HOVI小屋是属于我们俩的第一套房子,这次经历也是我们完全的第一次装修。从买房至今已有大概1年的时间,这段时间看了不少案例,收集了很多大虾们的成果还有装修杂志上的典范之作。8月底很快就要交房了,我们家的风格和方案也很快要浮出水面。榜样的力量无穷大,现在把我顶礼膜拜的这些样板贴出来,请各位大虾指点,供和我一样菜的TX们参考......
PS:这些图片都是从装大、篱笆、互助、55各个论坛上零散收集起来的,除了图上有的说明以外,我都基本记不住原作者了。在此向各位原作者鞠躬致敬,谢谢各位的倾力支持了

    首先是厨房吧,厨房是我花费精力最多的地方。因为从一开始就打算要做开放式厨房,所以很多东西要求就提高了,比如烟机、比如橱柜与客厅的家具如何统一、比如瓷砖的颜色和客厅的色调如何统一......

      先说结构吧,这张图片的结构跟我们现在确认的基本是一摸一样,请注意,吧台是在客厅沙发后面,不是太显。不过我们应该会把吧台调高,太喜欢高脚凳了:


8.jpg
回复

使用道具 举报

9

主题

4299

帖子

8656

积分

本科毕业

积分
8656

社区居民

 楼主| 发表于 2012-1-5 19:33:13 | 显示全部楼层
翡翠丁丁:
哈哈,我也是某大过来的。握手!
回复

使用道具 举报

9

主题

4299

帖子

8656

积分

本科毕业

积分
8656

社区居民

 楼主| 发表于 2012-1-5 19:33:45 | 显示全部楼层
再说色调,橱柜是奶白色、瓷砖用浅金色或者小麦色的小方砖。下面是参考榜样:
9.jpg
回复

使用道具 举报

9

主题

4299

帖子

8656

积分

本科毕业

积分
8656

社区居民

 楼主| 发表于 2012-1-5 19:34:30 | 显示全部楼层
还有这个
10.jpg
回复

使用道具 举报

9

主题

4299

帖子

8656

积分

本科毕业

积分
8656

社区居民

 楼主| 发表于 2012-1-5 19:35:02 | 显示全部楼层
接着是橱柜,橱柜我们已经定了佳诺,冲着装大的口碑,期待着ing...
11.jpg
回复

使用道具 举报

9

主题

4299

帖子

8656

积分

本科毕业

积分
8656

社区居民

 楼主| 发表于 2012-1-5 19:35:35 | 显示全部楼层
不过说实话,我觉得佳诺这种田园风格的橱柜感觉没有很多样板间的精致,不知道是不是因为还有没有看实物。很喜欢下面图片的这个橱柜,包括瓷砖:


12.jpg
回复

使用道具 举报

9

主题

4299

帖子

8656

积分

本科毕业

积分
8656

社区居民

 楼主| 发表于 2012-1-5 19:36:07 | 显示全部楼层
再然后就是瓷砖了,基本确定要蜜蜂的那种小方砖,不过蜜蜂好像贵了点,还在找替代品。上面那张图片使用的是蜘蛛的亮面小砖,颜色真漂亮,就是稍微冷了点,因为我家北向,所以一定要选择偏暖的麦色。上面图片的那些小方砖颜色都很PP...
另外,篱笆的老庄是不建议厨房用小方砖,确实难清洗。可是可是....老庄,俺太喜欢小方砖呢,有没有大虾建议一下,有没有和小方砖一样漂亮的瓷砖,又容易清洗的。(*^__^*) 嘻嘻……

    还有就是橱柜台面的色调基本统一就行了,没有太多的要求。吧台与橱柜台面做成一样的,保持一致。吧台上面要做个酒柜,俺们要藏些红酒在里面。下面这个样子很喜欢,正在考虑要不要借鉴下面那个马赛克,不过好像又不好清洗。

厨房篇告一段落,接下去再写客厅、卫生间、卧室......我家太小,就这两件屋子让我折腾啦

13.jpg
回复

使用道具 举报

9

主题

4299

帖子

8656

积分

本科毕业

积分
8656

社区居民

 楼主| 发表于 2012-1-5 19:36:27 | 显示全部楼层
装修前传之六:顶着炎炎烈日,自己逛回龙观家居建材城

    今天下午偷懒,趁出门办事,溜达去了趟回龙观家居建材城。老是在上下班的过程中看见他家的免费班车排成长队,类似游行。加上死扛着大哥说,最好的建材城就是离家最近的建材城。所以对于这个离我们新家最近的地方,我早已虎视眈眈。

    顶着炎炎烈日的收获,不算太好,但是也不算失望,有一些可取的地方。PS:对于追求品质和购物环境的各位XDJM,这篇可以略过........


    1、最先看了灯具和五金:
    因为我的重点是田园式的吊灯,基本没有看到合适的,如果希望淘到这种风格的灯,我觉得在这里基本没有可能。但是看到不少店面都代理西门子、西蒙、朗能(晕了,是这个牌子吧)等不少好牌子的开关。
  五金只看了顶固,主要是看锁。MS只有一家做顶固,折扣报价说是集采价格5折,但是我总觉得标价不是特别靠谱。有款比较简单的田园,折后150,请DX们帮忙审核一下吧。这家还有一个叫“恋伊”的晾衣架,折后300
  进门第一家有樱花拉蓝,但是不是太多,我就看到三种规格,价格从250-350

2、洁具和龙头
  有2-3家专卖九牧,其他的好牌子基本没有见到。九牧以前没有考察过价格,今天问了两个面盆龙头,都在250-400之间,我觉得没有特价的摩恩划算。基本不做考虑了。
  如果考虑价格便宜,这里应该有不少非大牌可以考虑。

3、地板
  圣象、莱茵阳光、德尔在这里都有店面,莱茵阳光因为去核对选的颜色,仔细考察了挺久,他家8mm的标准EO折后68(不含辅料之类),和我们的集采价格相差不远。如果考虑这个牌子的可以去看看。
  木门没有看到特别大的牌子,春天、TATA之类在这里都没有店面。

4、重点看了瓷砖
  瓷砖,我主要考察100*100和150*150的小砖,这里确实不多,我进了有不下10家店面,最后看到有合适的复古小砖的大概只有5家左右。问了几个店家,都说在这里复古小砖不好卖。
  PS:瓷砖的店面大都挂着大牌子,像冠军、东鹏、嘉俊、奥米笳在这里都有,但是实际店面里面销售的大部分是小牌子(反正好多没听说过),这里一般都是走低价路线。
  下面是我认为比较合适的几个:
  东鹏店里的萨索罗(不知道啥牌子,估计是杂牌)。复古163*163(这个尺寸很奇怪,没见过)每平米58。他家还有配套的地砖,看着还不错,68.
    长城店里的腾达,复古150*150,折后68
    罗马里奥,复古小砖100*100,最低价90。他家还有56的特价砖。我感觉和我周日在居然之家看到的价格差不多。这个90的小砖是我今天看到的最满意的瓷砖了,橘色小砖(还有一样的青色,价格也一样),正是我要的。这个牌子不知道好不好。还请DX们评价一下吧。
  马赛克,很多店面有水晶马赛克,大噶这阵子马赛克特别热吧。问道最低的一家是东鹏里面的浅色120每平米,深色150每平米。其他的地方基本都是180。PS:都是砸牌子,连店主都这么说。

5、墙漆
  就看了多乐士,金装五合一是265吧,金装全效好像是300多一点,详细的数字忘了。可以调色,店面标着假一罚十。

6、窗帘和壁纸
  窗帘没有细问,反正店面超级多,看着田园式的那种花窗帘不少,挺好看的,不过不知道价格。图方便的话,我可能会选在这里做窗帘。
  壁纸只有两家看到了,有一家有玉兰,以及其他牌子,但是没有纯纸的,也就是纯的木纤维。还有一家花色特别多,有一个产自上海没听过名字的PVC壁纸超级漂亮,而且看起来非常像纯纸的质地。而花色全部都是那种韩式的田园风格,条纹的、小花的、格子的。价格折合成平米后,大概30每平。不过PVC的肯定不能考虑,除非打定主意在卫生间的干区贴。还有一个牌子,是韩国进口的梅花(我也没听过),店主说是纯木纤维的,我闻了样品,确实没有味道。价格折合平米是,40每平。其他的人工+辅料大概是8元每平。

  今天翘班的收获就是这些,我的感受是,如果要好牌子好品质,我觉得这里绝对不是好选择,可以去东方家园或者好美家挑。像洁具、壁纸什么的应该没必要。家居我没有看,没有发言权。这些价格是我在基本没有特别还、以及数量没有提供的情况下给的(除罗马里奥的瓷砖以外),所以基本还有还价的空间。

  太晒啦,我又黑啦,这装修弄得55555555555555555555
回复

使用道具 举报

您需要登录后才可以回帖 登录 | 立即注册

本版积分规则

装修百科|手机版|小黑屋|北京高老庄建筑装饰工程有限公司 ( 京ICP备19035109号 )

GMT+8, 2026-4-2 19:02 , Processed in 0.372044 second(s), 33 queries .

快速回复 返回顶部 返回列表