北京装修论坛 - 北京装修社区_高老庄工长装修

 找回密码
立即注册
热搜: 工长 设计 曝光
楼主: brant

【第一期比赛15号作品】女王大人家的装修日记-

[复制链接]

1

主题

19

帖子

50

积分

学前班

积分
50

社区居民

发表于 2013-5-6 13:53:49 | 显示全部楼层

回 8楼(brant) 的帖子

brant:我想是不是等她方案出来后,我发到网上,你看看后,再给你介绍呢?不然有点太不负责任了~呵呵 (2013-05-04 23:17)
先谢过……
我也是有个小阳台,想拆扩,做大空间。
积极等待你的新进度,我下旬得开工了,宝宝9月入学,8月中计划入住,但愿来得及!
回复

使用道具 举报

1

主题

19

帖子

50

积分

学前班

积分
50

社区居民

发表于 2013-5-6 13:54:50 | 显示全部楼层
飘过的高手,也请不吝赐教……
回复

使用道具 举报

1

主题

19

帖子

50

积分

学前班

积分
50

社区居民

发表于 2013-5-6 14:03:15 | 显示全部楼层

回 6楼(老庄) 的帖子

老庄:借宝地欢迎新人。

欢迎新同学,欢迎欢迎热烈欢迎,高老庄是网友交流的平台,要多发言呀,多发言不光可以解决装修难题,还可以交到朋友。呵呵。 (2013-05-04 11:15)
谢谢老庄!
读了你论坛里的大作,很崇拜。学习了各种理论知识,还是觉得不得其要。关键是懒人一枚,能在此求良心工长一名吗?
回复

使用道具 举报

3

主题

24

帖子

70

积分

学前班

积分
70

社区居民

发表于 2013-5-6 14:24:52 | 显示全部楼层
,继续努力。。。
回复

使用道具 举报

25

主题

474

帖子

960

积分

高中毕业

积分
960

社区居民

 楼主| 发表于 2013-5-6 22:41:48 | 显示全部楼层

回 13楼(yvonne05) 的帖子

yvonne05: ,继续努力。。。 (2013-05-06 14:24) 
好的,大王,没问题,大王。
回复

使用道具 举报

12

主题

369

帖子

868

积分

高中毕业

积分
868

社区居民忠实会员

发表于 2013-5-7 12:05:19 | 显示全部楼层
你家女王是怀宝宝了么?我同学跟我说,怀孕的时候谈判很有威慑力的!
回复

使用道具 举报

25

主题

474

帖子

960

积分

高中毕业

积分
960

社区居民

 楼主| 发表于 2013-5-9 21:25:13 | 显示全部楼层
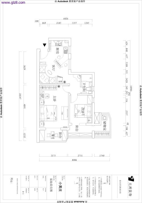
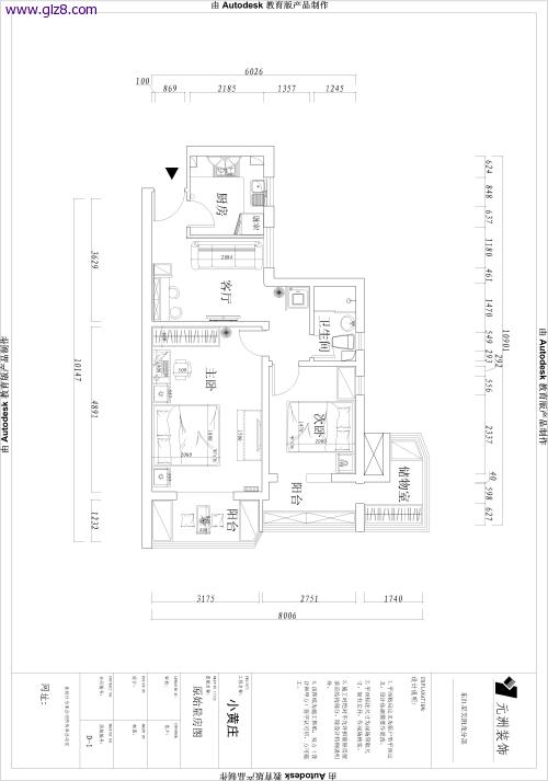
设计师给设计的方案出来啦,还是很有创意的,抛开实用性,至少我没想到第一个方案。大家帮忙看看靠谱不?
有几个问题:
1、洗手盆的位置在哪更合适?卫生间内还是走廊拐角?
2、洗衣机的位置?
3、冰箱的位置?
4、餐桌和客厅保留哪一个?常住人口5人,吧台实用性不大。
5、厨房开放OR 封闭?
6、次卧阳台做储藏室会不会有在冬天因室内外温差的问题,结露长霉?
小黄庄1-Model.jpg
小黄庄2-Model.jpg
回复

使用道具 举报

25

主题

474

帖子

960

积分

高中毕业

积分
960

社区居民

 楼主| 发表于 2013-5-9 21:27:32 | 显示全部楼层
今天去订了H的断桥铝窗户,真心贵呀
之前纠结好久是用十八里店那些550全包的传说中的德国XXX什么的,还是用国产H或者SJLY这类,最后还是定了用国产H,就当花钱买个安心吧。。。断桥铝的水实在太深。
                                                                                                                     女王大人御笔
--------------------------------------------------------------我是华丽的分割线----------------------------------------------------------


为避免广告嫌疑,我把牌子名字都改了,请大王赎罪。

                                                                                                               大头兵
回复

使用道具 举报

25

主题

474

帖子

960

积分

高中毕业

积分
960

社区居民

 楼主| 发表于 2013-5-9 23:01:02 | 显示全部楼层
    大头兵一直庆幸这房子有两个阳台,又占了不少房本的便宜,晒衣服能晒好多,还能做点柜子,养点花草,给宠物搭个窝,再做个榻榻米,在阳光下读书......家里的大王一声怒吼:去看看现在窗子能不能用!大头兵马上战战巍巍的去认真检查窗子。
-报告大王,
-叫我女王大人。
-好的大王,没问题大王,窗子没怎么坏,就是关不严~
-叫我女王大人!!!!

    窗子的确没怎么坏,就是惨不忍睹,各种变形,基本属于关上就别想开的那种,目测得全换掉。鉴于此,大王在深思熟虑后,决定派一支强大的侦察部队,去趟趟断桥铝市场这趟浑水。侦察部队的首领就由大头兵来担任,副首领暂时空缺,队员...也暂时空缺。装备:一本小本子,一支碳素笔,一个快坏了的卷尺,一个沉重的单反,还有一张只有10元钱的公交卡。
【一进居然之家】
不知道从哪下手,居然之家金源店离得不太远,去看看。看的第一家门窗店,我已经忘了是什么牌子了,进去稀里糊涂的,60,55,70?什么意思?但是价格算法吓我一跳,不开窗的一个算法,开窗的一个算法,五金一个算法,纱窗一个算法,立柱一个算法,副框一个算法,防水胶一个算法,算的我头晕眼花,只得落荒而逃。
【二进居然之家】
      这次在高老庄和其它论坛上学习了一溜够,大头兵自以为已得真传,从哪跌倒就从哪爬起来,直接杀到居然金源店。七拐八拐,拐进了一个RH牌,60的单开窗1180,固定980,五金480一套,纱窗另算。。。我被吓尿了,这算下来3W多了,撤。
旁边SJLY?不是做五金的么?开直营店了?去看看,601280,固定1080,比旁边还贵,好贵啊 好贵啊 好贵啊!!赶紧回去向大王报告。


--报告大王,窗子好像有点贵。
--再探!


【万家灯火】
    上次老庄说万家灯火好多便宜的断桥铝,奉大王命令,前来探查。第一个德国A60400每平,我了个去,比居然便宜多了。我家20平,8000拿下,太好了,赶紧坐下来算算,算出来16000!!!我也不知道怎么算出来的。什么副框?什么MEDK五金?好吧,比3W是便宜的多,咋老觉得不对劲?
    第二家去的也是德国B60320每平,五金诺托380一套,纱窗120/平米,全算下10000多,很心动啊!!!
    第三家也是德国C62180/平米,五金380,纱窗150,全算下13000.
    忽然发现这个市场里好多德国的德被盖住了。。。此事必有蹊跷。
    第四家去的国内名牌F55的,160/平阿,有木有!!!!这个价格。。。
【一进红星美凯龙】
    从万家灯火出来大头兵就直接去红星了。
    同样的牌子,德国C62650/平,全包价.最后算下来也是13000多,怎么和万家灯火差不多?
F牌,55 280 /平,五金450一套,180一米纱窗。。。
德国B牌,全包60650,总价12000左右。

    这些价格都差不多。。。莫非就是居然的最贵?

    当天晚上,回家查A\B\C\F牌,吓了一跳,百度百科里对各种德国XXX评价极低,国产名牌假货横行。而且万家灯火大部分商店都是转包给十八里店加工厂赚差价。

    这可怎么办,赶紧向大王报告,大王批复如下:再探!!!

【十八里店】
    根据55论坛里端端妈的指引,我在周六做了3个小时公共汽车从西三环来到了据说是万家灯火断桥铝加工厂聚集地的十八里店。这里也是北京。。。。。。
_MG_2289.jpg
_MG_2291.jpg

_MG_2298.jpg

    因为临时接到单位加班通知,大头兵只看了两家,也是德国XXX,报价都差不多,60的,590/平米,全包价。这个的确是目前我看到的最便宜的。

    晚上加班后回到家,赶紧和大王做了汇报:
--报告大王,这个便宜!
--就用他吧。
--但是有可能是假的。
--恩?再探!!!!!!!!!

【F牌总代理】
    既然德国XXX网上评价很低,我不如找找国内名牌F,网上一搜,还真不少先驱,他们是直接从F北京总代理买的。我赶忙要了个电话,那时晚上7点了,我也没管那么多,直接就打到工程部了,居然还有人在,态度也还行,比我好多了,哈哈。55的一平780全包。
随后随便查F牌,竟然有消息说总代理也有假的?心里很打鼓啊。

    心里很矛盾,向大王汇报了一下。
   大王说,反正都是假的,不如买个便宜的,18里店的吧!!

    这个批示,大头兵还真没轻易执行,我于是又查了下国内凤铝10大品牌,竟然发现北京自己的一个牌子有工厂直营店,我赶紧向大王申请了公交卡,直奔而去。
    那是一个中午,我没有吃饭,到店后,只有店长一人,聊了一会,感觉还比较靠谱,
第一,肯定是工厂直营,因为我在官网的指引下来的。
第二,报价完全是电脑报价,不像别的地方,全都是嘴说,至少单价是统一的。
第三,有丝吉利娅、诺托的授权证书。
第四,最重要的是大头兵看烦了。
全算下来18000多点,考虑到毕竟房子临街,窗子质量还是要靠谱的,在别的地方省钱吧。


向大王报告,大王批示,多出来的钱,从你工资里扣!!!

。。。。。。。。。。。。。。。。。。。。。。。。。。。我是华丽的分割线。。。。。。。。。。。。。

    今天大头兵交了200定金,大王很高兴,因为窗子的事不用她发愁了,于是用我的号在上面简单记录两句,作为她的感受。
回复

使用道具 举报

5

主题

142

帖子

328

积分

初中毕业

积分
328

社区居民

发表于 2013-5-10 09:14:59 | 显示全部楼层
凤铝的市场管理相当乱,可能会买到假货,我家的断桥铝窗户,我是不会买凤铝的东西。
回复

使用道具 举报

您需要登录后才可以回帖 登录 | 立即注册

本版积分规则

装修百科|手机版|小黑屋|北京高老庄建筑装饰工程有限公司 ( 京ICP备19035109号 )

GMT+8, 2026-3-31 22:01 , Processed in 0.156018 second(s), 27 queries .

快速回复 返回顶部 返回列表